Gepflegte Doppelhaushälfte in ruhiger, begehrter Lage von Bad Gögging, Neustadt a. d. Donau, Landkreis Kelheim – mit Garten und Garage zu verkaufen.

Doppelhaushälfte in Bad Gögging, Neustadt a. d. Donau
Wir freuen uns, Ihnen eine gepflegte Doppelhaushälfte in beliebter und ruhiger Wohnlage von Bad Gögging (Stadt Neustadt an der Donau, Landkreis Kelheim) vorstellen zu dürfen. Das charmante, massiv errichtete Haus wurde 1967 erbaut, verfügt über ca. 95 m² Wohnfläche und steht auf einem Grundstück von rund 375 m². Die Immobilie ist voll unterkellert und derzeit langjährig vermietet – ideal als Kapitalanlage in einer gefragten Wohnlage.
Im Erdgeschoss erwartet Sie ein großzügiger Eingangsbereich mit praktischen Abstellmöglichkeiten sowie ein Gäste-WC. Die Küche ist als Wohnküche konzipiert und bietet ausreichend Platz für Familie und Gäste. Das helle, weitläufige Wohnzimmer mit Zugang zur sonnigen Südterrasse und in den gepflegten Garten bildet das Herzstück des Hauses.
Im Obergeschoss stehen zwei Kinderzimmer sowie das Elternschlafzimmer mit Zugang zum Balkon (Südausrichtung) zur Verfügung. Das Tageslichtbad ist mit Badewanne und WC ausgestattet.
Das Dachgeschoss bietet zusätzlich vielseitige Nutzungsmöglichkeiten – ob als Studio, Büro oder weiteres Schlafzimmer, hier ist Raum für individuelle Wohnideen.
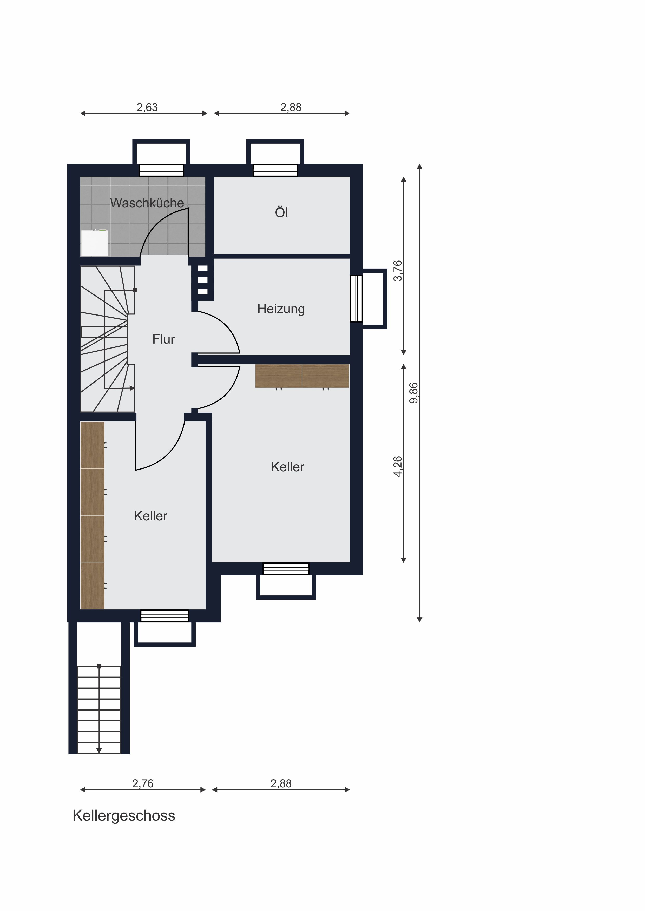
Im Kellergeschoss befindet sich neben einem Hobbyraum und einem Waschraum auch der Heizraum mit einer modernen Buderus-Ölheizung aus dem Jahr 2019. Weitere Abstellflächen bieten zusätzlichen Stauraum.
Das Haus befindet sich in einem sehr gepflegten Zustand und steht auf einem schönen, eingewachsenen Grundstück mit großzügiger Zufahrt. Eine Garage sowie Nebengebäude runden das attraktive Angebot ab.
Ein solides, gepflegtes Zuhause mit Garten, Nebengebäuden und langfristiger Vermietung – ideal für Kapitalanleger in einer ruhigen und begehrten Lage von Bad Gögging.
325.000 €
Käuferprovision: 3,57 % inkl. MwSt.
Übersicht
Wir freuen uns, Ihnen eine gepflegte Doppelhaushälfte in beliebter und ruhiger Wohnlage von Bad Gögging (Stadt Neustadt an der Donau, Landkreis Kelheim) vorstellen zu dürfen. Das charmante, massiv errichtete Haus wurde 1967 erbaut, verfügt über ca. 95 m² Wohnfläche und steht auf einem Grundstück von rund 375 m². Die Immobilie ist voll unterkellert und derzeit langjährig vermietet – ideal als Kapitalanlage in einer gefragten Wohnlage.
Im Erdgeschoss erwartet Sie ein großzügiger Eingangsbereich mit praktischen Abstellmöglichkeiten sowie ein Gäste-WC. Die Küche ist als Wohnküche konzipiert und bietet ausreichend Platz für Familie und Gäste. Das helle, weitläufige Wohnzimmer mit Zugang zur sonnigen Südterrasse und in den gepflegten Garten bildet das Herzstück des Hauses.
Im Obergeschoss stehen zwei Kinderzimmer sowie das Elternschlafzimmer mit Zugang zum Balkon (Südausrichtung) zur Verfügung. Das Tageslichtbad ist mit Badewanne und WC ausgestattet.
Das Dachgeschoss bietet zusätzlich vielseitige Nutzungsmöglichkeiten – ob als Studio, Büro oder weiteres Schlafzimmer, hier ist Raum für individuelle Wohnideen.
Im Kellergeschoss befindet sich neben einem Hobbyraum und einem Waschraum auch der Heizraum mit einer modernen Buderus-Ölheizung aus dem Jahr 2019. Weitere Abstellflächen bieten zusätzlichen Stauraum.
Das Haus befindet sich in einem sehr gepflegten Zustand und steht auf einem schönen, eingewachsenen Grundstück mit großzügiger Zufahrt. Eine Garage sowie Nebengebäude runden das attraktive Angebot ab.
Ein solides, gepflegtes Zuhause mit Garten, Nebengebäuden und langfristiger Vermietung – ideal für Kapitalanleger in einer ruhigen und begehrten Lage von Bad Gögging.
Ausstattung:
* Doppelhaushälfte
* Baujahr 1967
* Wohnfläche: ca. 95 m²
* Grundstücksfläche: 375 m²
* Voll unterkellert
* Großzügiger, gepfleger Garten
* Garage
* Isolierte Kunststofffenster, 2 fach
* Rollos manuell
* Böden: Teppich, Vinyl, Fliesen
* Vermietet seit: 1968
* Nettokaltmiete: 273,38 Euro
* Letzte Mieterhöhung länger 2 Jahre
* Erdgeschoss:
- Eingangsbereich, Garderobe
- Gäste WC
- Wohnküche mit Blick in den Garten
- Wohnzimmer mit Zugang zur Terrasse (Südseite)
* 1. Obergeschoss:
- 2 Kinderzimmer
- Schlafzimmer mit Balkon (Südseite)
- Tageslichtbad mit Badewanne, WC, Waschbecken
* 2. Obergschoss:
- 1 Schlafzimmer, Studio
- Kunststoffdachfenster
- Abstellflächen
- Dach gedämmt
- Heizkörper vorhanden
* Keller:
- Hobbyraum mit Heizkörper
- Abstellraum, Werkstatt
- Waschraum mit Waschmaschinenanschluss
- Heizungsraum, Buderus Ölheizung aus 2019
- Tankraum, geschweißt
* Garten:
- Partyraum
- Schuppen, Gerätehaus
- Einzelgarage
- 4 Außenstellplätze
- Ortgang verkleidet
Energieausweis

Sind Sie an dieser Immobilie interessiert?
Kontaktieren Sie uns, wenn Sie Interesse an diesem Objekt haben. Wir treten schnellstmöglich mit Ihnen in Verbindung.
Weitere interessante Objekte
Exklusive Immobilien in der Region



















(1)(1).webp)

