Gepflegtes Einfamilienhaus mit Einliegerwohnung und Ausbaupotenzial im Zentrum von Riedenburg, Landkreis Kelheim zu verkaufen

Einfamilienhaus mit Einliegerwohnung in Riedenburg
Wir freuen uns, Ihnen ein gepflegtes Einfamilienhaus mit Einliegerwohnung in zentraler und zugleich ruhiger Lage von Riedenburg vorstellen zu dürfen. Das im Jahr 1993 auf einem bestehenden Altbau errichtete Haus bietet auf einem Grundstück von ca. 537 m² eine großzügige Wohnfläche von rund 205 m². Die Immobilie ist sofort verfügbar und überzeugt durch vielfältige Nutzungsmöglichkeiten – ideal für Familien, Kapitalanleger oder Selbstständige mit Bürobedarf.
Im Erdgeschoss befindet sich eine separate Einliegerwohnung mit eigenem Zugang. Diese umfasst zwei Zimmer – ein Schlafzimmer sowie ein Kinderzimmer oder Büro – und bietet ein helles, geräumiges Wohnzimmer, eine Wohnküche, eine praktische Speisekammer bzw. einen Abstellraum sowie direkten Zugang zum Keller. Durch separate Zähler für Strom, Wasser und Heizung ist eine eigenständige Abrechnung problemlos möglich – perfekt für eine Vermietung oder die Nutzung als Gewerbeeinheit (z. B. Büro, Versicherungsmakler oder Praxis).
Das Obergeschoss erreichen Sie über ein helles Treppenhaus. Hier befindet sich eine großzügige Hauptwohnung mit fünf Zimmern, darunter drei Schlafzimmer, eine separate Küche mit Speisekammer sowie ein modernisiertes, helles Tageslichtbad. Der große Wohnbereich bietet Zugang zum Balkon mit schönem Ausblick. Über eine Außentreppe gelangen Sie zudem direkt in den Gartenbereich.
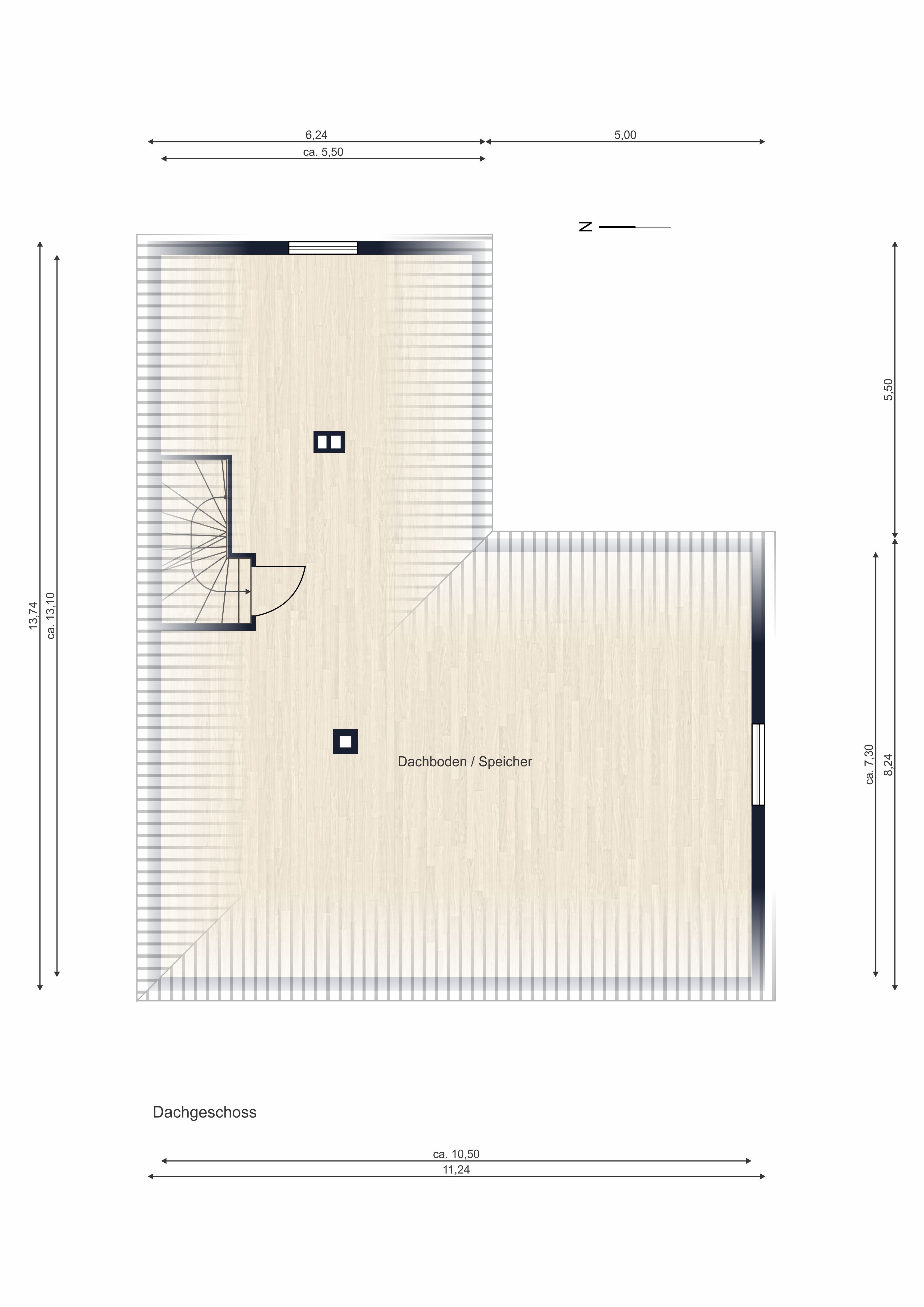
Ein besonderes Highlight ist das Ausbaupotenzial im 2. Obergeschoss: Dank massiver Bauweise steht Ihnen hier die gesamte Grundfläche des Hauses zur Verfügung. Strom-, Wasser- und Heizungsanschlüsse sind bereits vorbereitet – ideal für zusätzlichen Wohnraum, ein Atelier oder Homeoffice.
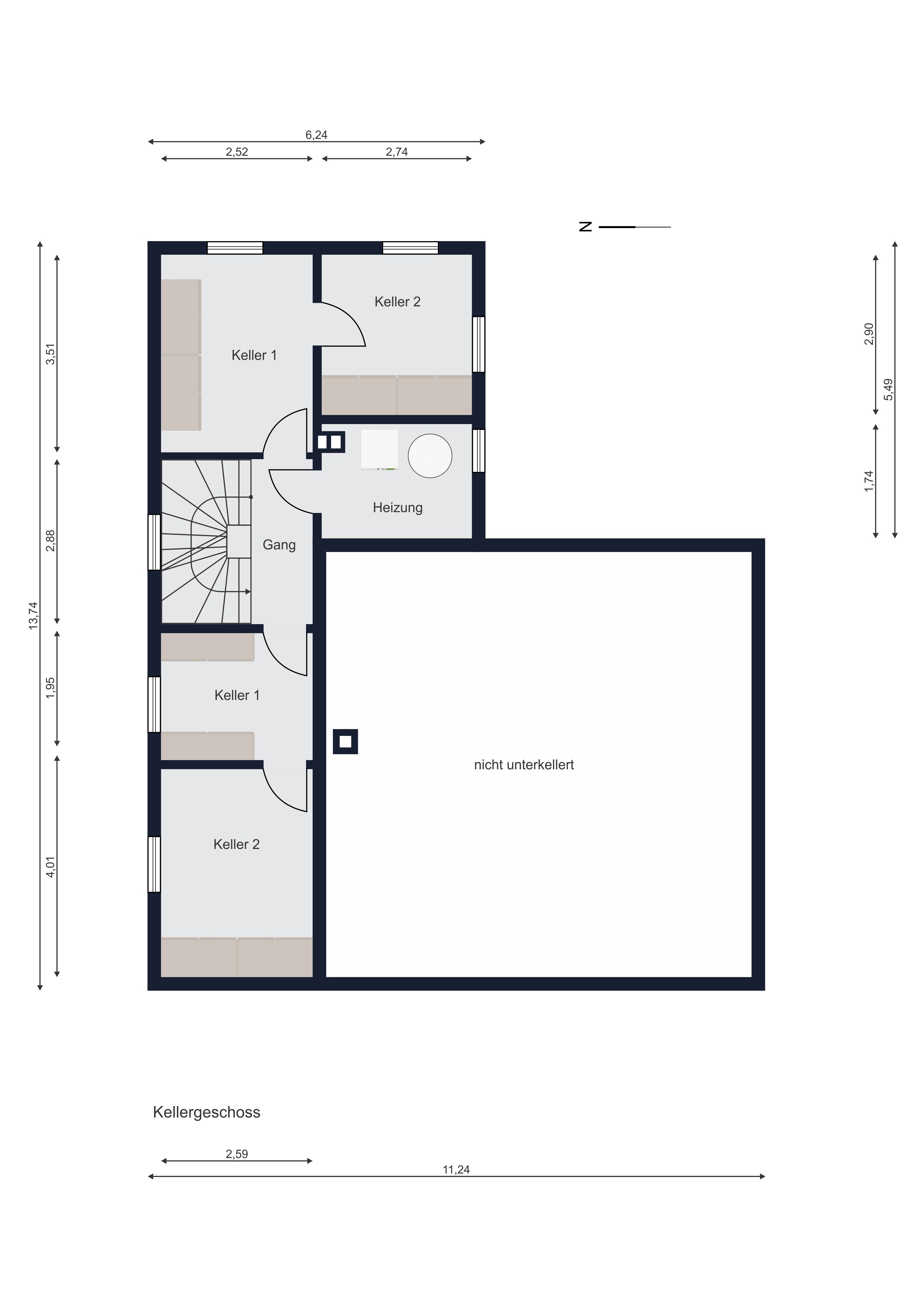
Das teilunterkellerte Haus bietet zusätzlichen Stauraum und Nutzfläche. Für Fahrzeuge stehen eine Garage sowie ein Nebengebäude zur Verfügung, das sich vielseitig verwenden lässt.
Ein gepflegtes und solides Haus mit Einliegerwohnung, Ausbaupotenzial und vielseitigen Nutzungsmöglichkeiten – zentral gelegen im schönen Riedenburg, wir freuen uns auf Ihre Anfrage.
599.000 €
Käuferprovision: 3,57 % inkl. MwSt.
Übersicht
Wir freuen uns, Ihnen ein gepflegtes Einfamilienhaus mit Einliegerwohnung in zentraler und zugleich ruhiger Lage von Riedenburg vorstellen zu dürfen. Das im Jahr 1993 auf einem bestehenden Altbau errichtete Haus bietet auf einem Grundstück von ca. 537 m² eine großzügige Wohnfläche von rund 205 m². Die Immobilie ist sofort verfügbar und überzeugt durch vielfältige Nutzungsmöglichkeiten – ideal für Familien, Kapitalanleger oder Selbstständige mit Bürobedarf.
Im Erdgeschoss befindet sich eine separate Einliegerwohnung mit eigenem Zugang. Diese umfasst zwei Zimmer – ein Schlafzimmer sowie ein Kinderzimmer oder Büro – und bietet ein helles, geräumiges Wohnzimmer, eine Wohnküche, eine praktische Speisekammer bzw. einen Abstellraum sowie direkten Zugang zum Keller. Durch separate Zähler für Strom, Wasser und Heizung ist eine eigenständige Abrechnung problemlos möglich – perfekt für eine Vermietung oder die Nutzung als Gewerbeeinheit (z. B. Büro, Versicherungsmakler oder Praxis).
Das Obergeschoss erreichen Sie über ein helles Treppenhaus. Hier befindet sich eine großzügige Hauptwohnung mit fünf Zimmern, darunter drei Schlafzimmer, eine separate Küche mit Speisekammer sowie ein modernisiertes, helles Tageslichtbad. Der große Wohnbereich bietet Zugang zum Balkon mit schönem Ausblick. Über eine Außentreppe gelangen Sie zudem direkt in den Gartenbereich.
Ein besonderes Highlight ist das Ausbaupotenzial im 2. Obergeschoss: Dank massiver Bauweise steht Ihnen hier die gesamte Grundfläche des Hauses zur Verfügung. Strom-, Wasser- und Heizungsanschlüsse sind bereits vorbereitet – ideal für zusätzlichen Wohnraum, ein Atelier oder Homeoffice.
Das teilunterkellerte Haus bietet zusätzlichen Stauraum und Nutzfläche. Für Fahrzeuge stehen eine Garage sowie ein Nebengebäude zur Verfügung, das sich vielseitig verwenden lässt.
Ein gepflegtes und solides Haus mit Einliegerwohnung, Ausbaupotenzial und vielseitigen Nutzungsmöglichkeiten – zentral gelegen im schönen Riedenburg, wir freuen uns auf Ihre Anfrage.
Ausstattung:
* Einfamilienhaus mit Einliegerwohnung
* freistehende Immobilie
* Massivbauweise
* Baujahr: 1993
* Wohnfläche: ca. 205 m²
* Grundstücksfläche: 537 m²
* 1 Einzelgarage
* 4 Außenstellplätze
* Komplett eingezäunt
* Mit Videoüberwachung
* Ortgang verkleidet mit Kupfer
* Nebengebäude als Holzlege & Waschhaus / Gerätehaus
* 1 Großen Balkon mit Süd/West Ausrichtung
* Außentreppen vom Balkon in den Garten
* Zusätzlicher Geräteschuppen auf dem Grundstück
* Zisterne mit Überlauf
* Isolierte 2-fach verglaste Holzfenster
* Hochbeet im Garten
* Erdgeschosswohnung wurde 2011 kernsaniert
* SAT Schüssel vorhanden
* Glasfaser vorbereitet
* Leerrohre vorhanden
* Wasserleitungen in Kunststoff
* 2 Kamine (1 x Heizung, 1 x für Schwedenöfen)
* Treppenhaus in Marmor
* Teilunterkellert
* Einliegerwohnung (Erdgeschoss):
- Böden: Laminat, Fliesen, Kork
- Thermostate an Heizkörpern für eine Vermietung vorhanden
- Strom, eigener Zähler für das App. Vorhanden
- Zwischenzähler für Wasserverbrauch vorhanden
- Flur, Garderobe
- Abstellraum
- Tageslichtbad mit Badewanne, WC, Dusche
- Wohnküche
- Schlafzimmer
- Wohnzimmer mit Kaminanschluss
- mit Kellerabteil
- Deckenhöhen ca. 2,50 m
- Sep. Büro/Schlafzimmer
* Obergeschoss:
- Sep. Wohneinheit
- Deckenhöhen ca. 2,45 m
- großzügiger Flur mit Garderobe
- Schwedenofen
- LAN Netzwerkdosen
- Gäste-WC mit Fenster
- Tageslichtbad, Sanierung Anfang 2025 mit großer Dusche, Hansgrohe Armaturen
- 2 Kinderzimmer
- Wohnküche mit Einbauküche inkl. Markenelektrogeräten (Siemens), Dunstabzug nach Außen führend
- Speisekammer
- Wohnzimmer mit Zugang zum Balkon
- Balkon mit Markise
- Elternschlafzimmer
- Zugang zum 2. Obergeschoss (Ausbaubar)
* 2. Obergeschoss
- Massivbauweise
- Ausbaufähig
- Strom
- Wasser
- Heizung
- Kaltdach
* Keller:
- Technikraum
- 3 x Abstellraum
- Heizungsraum
- Hebeanlage für den Keller, falls Waschmaschine o. Trockner installiert werden
- Gasheizung, Viessmann mit jährlicher Prüfung
Energieausweis
Standortbeschreibung
Riedenburg, die charmante Stadt im wunderschönen Altmühltal, begeistert mit ihrer idealen Mischung aus Natur, Kultur und moderner Lebensqualität. Eingebettet in eine malerische Landschaft mit Wäldern, Felsen und der Altmühl, bietet Riedenburg eine hohe Lebens- und Wohnqualität – perfekt für Familien, Paare und Ruhesuchende gleichermaßen. Die Infrastruktur in Riedenburg ist hervorragend ausgebaut. Im Zentrum finden sich zahlreiche Einkaufsmöglichkeiten, darunter Supermärkte, Bäckereien, Metzgereien, Apotheken sowie kleine Fachgeschäfte für den täglichen Bedarf. Ein vielseitiges Gastronomieangebot mit traditionellen bayerischen Wirtshäusern, gemütlichen Cafés und Restaurants sorgt für kulinarische Abwechslung. Auch die medizinische Versorgung ist bestens gewährleistet: In Riedenburg stehen mehrere Allgemein- und Fachärzte, Zahnärzte, sowie eine Apotheke und eine nahegelegene Klinik zur Verfügung. Für Familien bietet Riedenburg ein attraktives Umfeld mit mehreren Kindergärten, einer Grundschule, sowie weiterführenden Schulen im nahen Umkreis – darunter Realschulen und Gymnasien in Kelheim oder Beilngries. Ein gut ausgebautes Betreuungsangebot und zahlreiche Freizeit- und Sportmöglichkeiten machen Riedenburg zu einem idealen Wohnort für junge Familien. Die verkehrstechnische Anbindung ist ebenfalls sehr gut: Über die Bundesstraße B299 ist Riedenburg direkt mit Kelheim, Beilngries und Neumarkt i.d.OPf. verbunden. Die Städte Regensburg, Ingolstadt und München sind mit dem Auto in rund 30 bis 60 Minuten erreichbar. Auch der öffentliche Nahverkehr bietet regelmäßige Busverbindungen in die umliegenden Orte. Riedenburg steht für wohnen, wo andere Urlaub machen – eine perfekte Kombination aus idyllischer Natur, moderner Infrastruktur und hoher Lebensqualität. Ob zum Arbeiten, für die Familie oder zur Erholung: Hier finden Sie ein Zuhause mit Herz, mitten im Naturpark Altmühltal.


Sind Sie an dieser Immobilie interessiert?
Kontaktieren Sie uns, wenn Sie Interesse an diesem Objekt haben. Wir treten schnellstmöglich mit Ihnen in Verbindung.
Weitere interessante Objekte
Exklusive Immobilien in der Region


































(1)(1).webp)

